Therme Vals / Termy w Vals
Vals, Graubunden, Switzerland
architect: Peter Zumthor Atelier, Haldenstein
data otwarcia: 1996
rysunki: Atelier Peter Zumthor
foto: T. Sachanowicz '23, www.slabpracownia.pl
wizyta w termach w Vals to niesamowicie pozytywne doświadczenie; wstęp do term kosztuje 50 franków od osoby (jeżeli korzysta się z hotelu w Vals) lub 60 franków od osoby jeżeli nie korzysta się z lokalnych usług hotelowych (koszt wart każdego centyma); w cenie hotelu są też przejazdy miejscową kolejką linową;
czas wizyty jest nielimitowany; ja byłem tam od około 16 do około 19 - praktycznie do zamknięcia; termy stosują politykę limitowanej ilości użytkowników (stąd też cena wstępu) więc nie ma tu nieprzyjemnego często wrażenia zatłoczenia; jeżeli chodzi o ilość korzystających z term osób jest w sam raz;
w Vals oprócz term jest jeszcze betonowo-kamienny most projektu Petera Zumthora oraz domy letniskowe w pobliskim Leis; domy należą do rodziny Zumthorów i można je wynajmować;
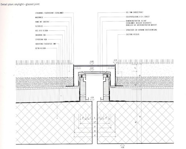
rysunki + foto makiety:
Vals przed budynkiem Zumthora:
strona term:
zdjęcia wnętrz ze strony term w Vals:
dach budynku term:
most projektu Petera Zumthora w Vals:
kamieniołom w Vals:
Vals:
wszystko w Vals robią z lokalnego gneisu:





























































Brak komentarzy:
Prześlij komentarz